İşçilik ve Teknolojinin Buluşması: Modern Bir Ahşap Mağara
05/06/2024
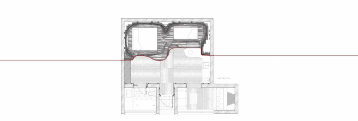
"Wooden Cave", bir diğer ifadeyle "Ahşap Mağara", adından da anlaşılacağı üzere, ormanın derinliklerinde keşfedilmiş doğal bir mağaranın etkileyici atmosferini yansıtan, Tenon Mimarlık tarafından tasarlanan ve 2020 yılında tamamlanan bir proje. Yunanistan'ın Trikala Korinthias kentindeki Hyades Mountain Resort'ta Apostolos Mitropoulos ve Thanos Zervos tarafından tasarlanıp uygulanıyor. Proje, ticari kullanım amaçlı olarak mevcut bir alanının tamamen yenilenmesini ve içinde kavisli bir ahşap yapı inşa edilmesini içeriyor.

Görsel tenon-architecture.com sitesinden alındı.
Mekanın tasarımı, planın iki bölgeye ayrılması fikrine dayanıyor. Stüdyo, süiti her biri farklı malzeme paletleriyle tamamlanan iki bölge olarak ayırıyor. Kavisli ahşap bir yapıdan oluşan ana oda bir bölüm olarak belirleniyor ve bir mağaranın içine benzer şekilde hafifçe kavisli duvarlarla kaplanıyor. Manzaraya doğru yönlendirilmiş, koyu renkli taşla kaplanmış ikincil mekanlar ise diğer bölüm olarak tanımlanıyor. Bu bölünme, sert, "koruyucu" kabuk ile kavisli, "davetkar" iç mekan arasında net bir ayrım ve çarpıcı bir kontrast yaratmayı amaçlıyor. Aynı zamanda, insanoğlunun varoluşu boyunca bir sığınak ve barınak olarak kullanılan mağara formunu anımsatıyor. İç kısımdaki misafir odası, kavisli yapıya entegre edilmiş iki uyku alanının yanı sıra açık plan olarak tasarlanmış bir mutfak içeriyor. Dışarda kalan alan ise, şömineli bir oturma alanı ve ana konuk odasının banyosu olmak üzere iki adet ikincil oda barındırıyor.
Görsel dezeen.com sitesinden alındı.
Bu projenin mekânsal ifadesinde malzeme niteliğinin büyük bir önem taşıdığı açıkça görülüyor. Mekansal unsurların çoğunun ahşap olduğu ve dış mekânların yerel bölgeden temin edilen taştan yapıldığı belirtiliyor. Kavisli yapı ladin ham keresteden yapılırken, geri kalan özellikler (mutfak, dolaplar, zemin vb.) budaksız çam kontrplaktan yapılmış. Bu malzeme seçimleri, projenin doğal tavrını ve sürdürülebilir yaklaşımını yansıtıyor. Ahşabın doğasına içkin renk ve dokusu ise, sıcak ve huzurlu bir mekansal atmosferin temelini oluşturuyor. Tüm ahşap yapılar, ahşabın arkasında hava akışına izin veren beton kabuktan bir sapma payı bırakarak inşa edilmiş. Ahşap elemanlar ve beton arasında dolaşan hava, yapıyı korumayı ve ahşabın doğal tamponlama yeteneklerinden yararlanarak odanın nemini ve sıcaklığını pasif olarak düzenlemeyi amaçlıyor. Çevresel koşulları kontrol eden pasif sistemin proje için hayati önem taşıdığı vurgulanıyor. Yüksek bir rakımda yer alan bölge yıl boyunca önemli sıcaklık dalgalanmaları ile karakterize edildiği için, bu sistem kritik bir önem arz ediyor.
Görseller tenon-architecture.com sitesinden alındı.
Projenin inşası Tenon Mimarlık ekibi tarafından yerinde gerçekleştirildi. Kavisli yapı 1.112 farklı kavisli ahşap parçadan oluşuyor. Her bir parçanın çizimleri algoritmik olarak üretilip sahaya aktarılıyor. Ardından burada parçalar manuel olarak işlendikten sonra 55 büyük modüle dönüştürülüyor. Modüllerin her biri daha sonra elle oyulmuş ve yapının son montajından önce şekillendirilmiş. İnşaatta herhangi bir dijital imalat yönteminin kullanılmamasının sonucu olarak, ortaya çıkan form, daha heykelsi bir tavrın ürünü haline geliyor. Bu son derece özelleştirilmiş heykelsi süreçte, aynı zamanda hiçbir marangoz, işçi veya bir başka teknisyenin istihdam edilmediğinin altını çizmek gerekiyor. Bu da, yapının her parçasının ekibin iki üyesi tarafından (Apostolos Mitropoulos ve Thanos Zervos) inşa ve monte edildiği anlamına geliyor. Böylece, proje dijital teknoloji ile geleneksel marangozluk tekniklerinin entegrasyonunu sağlayan bir süreç ile şekilleniyor.